Standort Zürcher Unterland
Leistungen Umbau, Architektur, EFH
Projektauftrag 2019 – 2020
Kennzahlen –
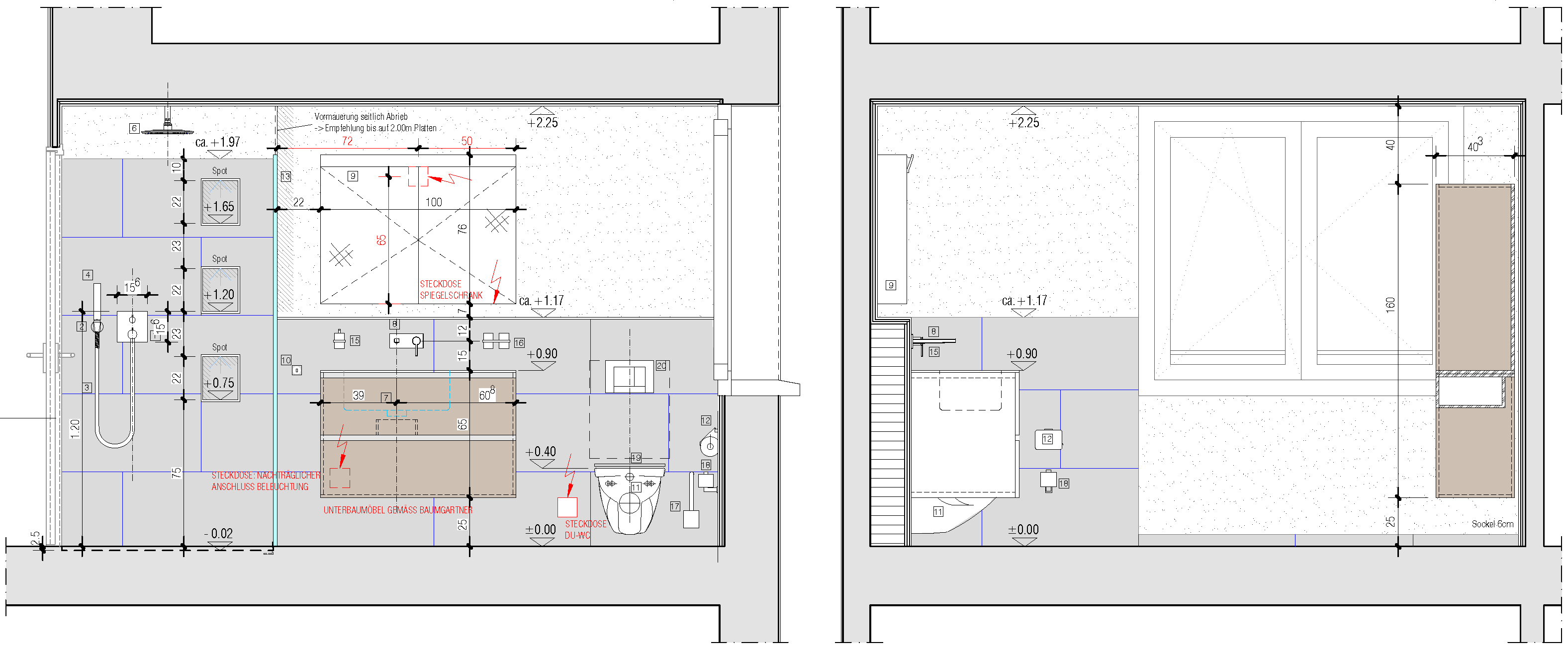
"Im bestehenden Wohngebäude des Bauerhofes wurden sämtliche Holzdecken mit einem Zementestrich und einer Bodenheizung ergänzt. Sämtliche Nasszellen wurden von Grund auf neu konzipiert. Durch die neue Raumeinteilung und dezente bauliche Eingriffe, konnte ein offenes und zeitgemässes Wohngefühl ermöglicht werden.“
